Do wynajęcia – hala produkcyjno-magazynowa czy usługowa w Częstochowie, dzielnica Tysiąclecie z bardzo dobry dojazdem do trasy DK!
Oferuję wynajem nowoczesnej i funkcjonalnej hali o powierzchni 261 m², zlokalizowanej w dogodnym miejscu w dzielnicy Tysiąclecie Częstochowa
Jest możliwość powiększenia o pow. 476m2 hali
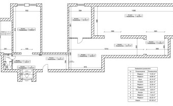
Parametry nieruchomości:
Powierzchnia całkowita: 261 m²
Układ: 6 pomieszczeń, w tym:
1. magazyn 14,20m2
2. magazyn 40,86m2
3. biuro 22,10m2
4. korytarz 28,81m2
5. magazyn 32,08m2
6. magazyn 22,17m2
7.pomieszczenie socjalne 4,05m2
8.rampa 3,91m2
9.magazyn 11,40m2
10.magazyn 82,02m2
pomieszczenia biurowe i socjalne w bardzo dobrym stanie, po remoncie
hala czysta zadbana wysokość o wysokości od 3m do 4,5m
Hala parterowa. Dobrze izolowana. Posadzka bezpyłowa, epoksydowo- żywiczna.
Gazowe C.O. zarówno hali jak i pomieszczeń biurowych.
Własna stacja transformatorowa o mocy 630 kw.
Dobry dojazd dla Tirów
Atuty obiektu:
teren ogrodzony i całodobowo monitorowany
swobodny dostęp do obiektu
duży, wygodny parking dla pracowników i klientów
cena 23zł/m2 netto
Idealna propozycja pod działalność produkcyjną, magazynową lub usługową.
Opis oferty zawarty na stronie internetowej sporządzany jest na podstawie oględzin nieruchomości oraz informacji uzyskanych od właściciela, może podlegać aktualizacji i nie stanowi oferty określonej w art. 66 i następnych K.C.



